La maison du futur

Ce projet a comme sujet la rénovation d’une maison de campagne en maison passive, capable de répondre aux défis climatiques auxquels nos sociétés font face. 

A la base d’une grange du début du 20ème siècle, acheté en état d’abandon, le but du projet est de créer une maison qui utilise principalement des moyens passifs pour le chauffage et refroidissement, qui économise la consommation d’énergie et d’eau et qui nécessite un minimum d’entretien et d’intervention, étant donné qu’il s’agit d’une résidence secondaire. 

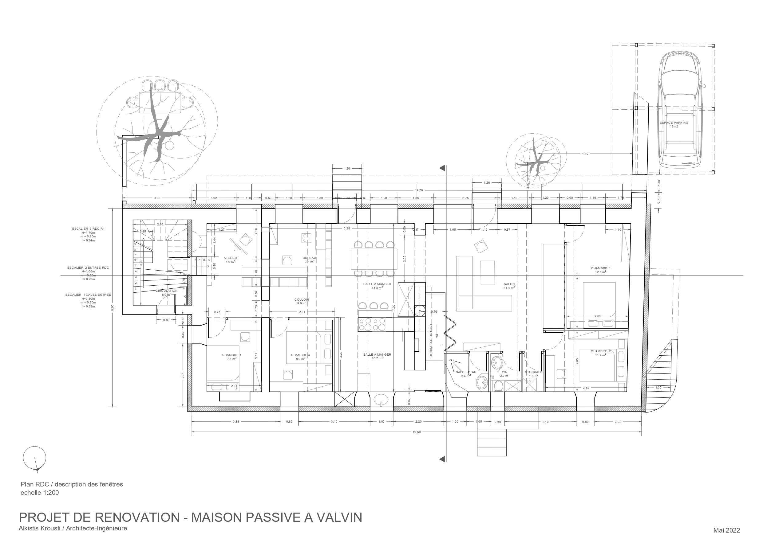
La volumétrie globale ainsi que l’aspect extérieur qui respecte l’image de la région, ont été conservées. En revanche, plusieurs nouvelles ouvertures sont réalisées et d’autres modifiées afin de maximiser les apports solaires au sud et minimiser les pertes thermiques au nord. Des triples ou doubles vitrages ont été choisis par rapport à l’orientation. L’isolation de l’enveloppe est prévue par l’extérieur, en matériaux bio-sourcés avec une finition en enduit respectant l’aspect visuel de l’existant. Cette solution laisse la possibilité d’exposer la pierre naturelle de la maison originale à l’intérieur. L’aspect traditionnel et rustique de l’existant sera combiné avec un style plus industriel contemporain utilisant des matériaux bruts et mettant en valeur les emprises nécessaires pour les réseaux de ventilation et de chauffage. L’aménagement intérieur a été imaginé en fonction du concept passif de la maison : 

Le rez-de-chaussée est considéré comme la zone de vie principale et constitue l’enveloppe principale en termes de chauffage et d’isolation. L’étage sous les combles est équipé des grandes lucarnes vitrées, permettant d’avoir une vue magnifique sur la montagne et un apport solaire important. Ici sera la zone de transition isolée mais chauffée uniquement passivement qui servira d’espace des jeux, salon secondaire et dortoir pour les enfants. Les caves sont modifiés pour communiquer depuis l’intérieur et sont fournis des fenêtres en soupirail pour leur ventilation. Ils serviront de stockage et de studio de musique. Une circulation verticale sera placée dans le pigeonnier existent, en annexe de la maison, connectant les trois niveaux entre eux et avec l’extérieur. 

La ventilation est assurée via un puits canadien qui introduit l’air à la température du sol, qui reste stable tout au long de l’année. Du niveau des caves, cet air est reparti entre l’entrée d’air du rez-de chaussée et un circuit de ventilation naturelle depuis les caves jusqu’à l’étage à travers l’escalier. Au niveau du RDC l’air est préchauffé via un échangeur de chaleur et puis introduit aux pièces de vie au long du côté sud. L’air est récupérer du côté nord et mené à l’échangeur de chaleur avant sa sortie vers l’extérieur. 

Le chauffage sera principalement à l’aide du soleil, de façon directe, à travers les grandes fenêtres au sud, et indirecte, à travers un plancher chauffé avec des panneaux PV- thermiques, placés en bas de la façade sud. L’eau chaude sera partiellement chauffée via le même système. Une poêle à bois sera ajoutée pour fournir des calories supplémentaires en plein hiver. Les fenêtres au sud seront équipées des brises solaires pour la protection solaire en été.

Un système de récupération d’eau sera mis en place, collectionnant l’eau de la toiture et les eaux grises de l’usage résidentiel pour l’eau non potable de la résidence et l’arrosage du jardin. Des toilettes sèches sont envisagées afin d’éviter les déchets dans le système sanitaire et de réduire la consommation d’eau. 

L’espace extérieur sera aménagé pour comprendre une terrasse en proximité de la maison, une petite serre de plantes, un potager sur des niveaux pour faciliter l’arrosage automatique, grâce à la gravité, et une forêt comestible au fond de la parcelle, de façon de ne pas perturber la vue.